 |
 |
 |
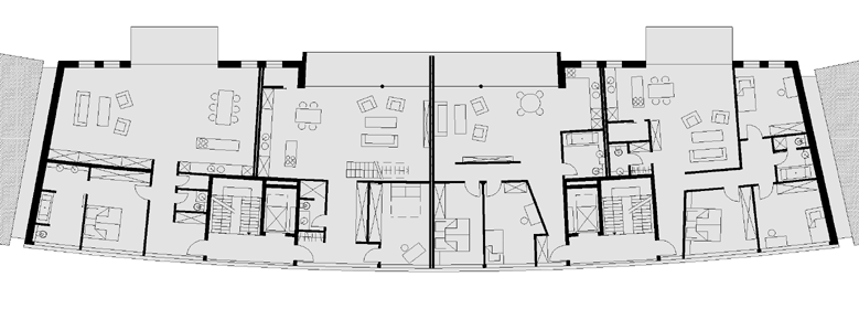
drittes und viertes obergeschoss |
|
 |
 |
 |
 |
Das Geschäfts- und Wohnhaus HAAS besitzt im dritten und vierten Obergeschoss eine große Bandbreite verschiedener Wohneinheiten von familiengerechter Mehrzimmer-Wohnung über zweigeschossiger Maisonette bis zum großzügigen Appartments.
Durch die flexible Grundstruktur des Gebäudes sind die Wohnungen nach Bedarf ausführbar.
|
 |
Ihre Vorteile:
| + |
Zeitgemäße und großzügige Wohnungen |
| + |
Planung und Aufteilung entsprechend Kundenwunsch |
| + |
Verschiedene Wohnarten: Geschosswohnung, Maisonette, Appartment |
| + |
Anpassungsfähigkeit: Nachträgliche wohnungsinterne Umbauten möglich, z.B. Wandlung von Mehrzimmer-Wohnung in Appartment |
|
 |
Weitere Vorteile des Geschäfts- und WohnGebäudes HAAS:
| + |
Hoher Wohnwert des Standorts: auf Vorderseite großer Platz mit städtischem Flair (Geschäfte, Wochenmarkt)
und vom 3./4. Geschoss mit "vernünftigem" Abstand; auf Rückseite Ruhe des großen Blockrand-Innenhofs |
| + |
Anbindung: sehr gute Straßenbahn-Verbindung mit Mannheimer City, 10 Minuten-Takt, Fahrzeit 15 Minuten; |
| + |
Auch gute Busanbindung zu umliegenden Stadtteilen; PKW-Anbindung ebenfalls günstig |
| + |
Zukunftsperspektive: Die Stadt Mannheim plant gezielte Aufwertung des Platzes durch Wochenmarkt und weitere Bebauung des Platzrandes (Geschäfte, Büros, Wohnungen, altersgerechtes Wohnen) für definierte räumliche Ausformung des Platzes. |
| + |
Tiefgarage: über Aufzug direkt in die Wohnung |
| + |
Behindertengerechte Aufzüge und barrierefreie Nutzung der Wohnung möglich |
|
 |
| Auf den folgenden Seiten finden Sie Beispiele möglicher Aufteilungen und Größen für Mehrzimmer-Wohnungen, Maisonette, Appartments. |
|
 |
 |
|
|