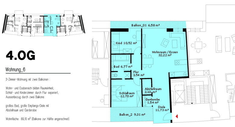
drittes und viertes obergeschoss / 3-zimmer-wohnung
wohnung: | | | | | | |